Diện tích xây dựng là gì?
Diện tích xây dựng là diện tích có hao phí chi phí xây dựng, những diện tích được thể hiện trong giấy phép xây dựng và những phần diện tích không được thể hiện trong giấy phép xây dựng, nhưng tại đó có hao phí chi phí xây dựng.
Diện tích xây dựng thường được dùng để xác định giá xây dựng (dự toán xây dựng) của công trình.
Diện tích sàn được tính từ phạm vi mép ngoài của các tường bao, thuộc tầng đó (bao gồm cả hành lang, ban công, lô gia…)
Cách tính diện tích xây dựng.
Diện tích xây dựng = diện tích sàn sử dụng + diện tích khác (phần móng, mái, sân, tầng hầm).
BẢNG BÁO GÁ KHÁI TOÁN XÂY DỰNG
Dự án: Xây mới nhà ở tư nhân
Qui mô: Trệt + lửng + 2 lầu + sân thượng + mái BTCT
Công ty SATECCONS xin trân trọng báo giá thi công công trình tại địa điểm: Q.3, Tp HCM của quý khách như sau:

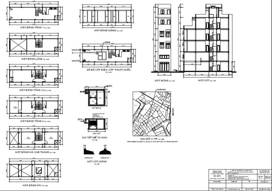
Số liệu chiều dài, chiều rộng sẽ được lấy từ Bản vẽ xin phép xây dựng.

Bản vẽ phần móng:
Chiều dài, chiều rộng sẽ được lấy với số liệu lớn hơn nên chiều dài ở mặt bằng móng này là 14.47 m, chiều rộng 3,8m.

Diện tích theo hệ số được tính: Chiều dài x Chiều rộng x Hệ Số( 14.47 x 3.8 x 0.5 = 27.49). Vì là móng băng nên hệ số là 0.5.
Hệ số móng được tính dựa theo tiêu chuẩn sau:
- Móng đơn tính 20% diện tích.
- Đài móng trên nền cọc bê tông cốt thép ép tải tính 30% diện tích.
- Đài móng trên nền cọc khoan nhồi, cọc BTCT ép neo tính 40% diện tích.
- Móng băng tính 50% diện tích.
- Móng bè tính 100% diện tích.
Phần nhà:


Diện tích theo hệ sô tầng một: 14.47 x 3.8 x 1 = 54.99m.
Hệ số phần nhà được tính dựa theo tiêu chuẩn sau:
- Phần diện tích có mái che phía trên tính 100% diện tích.
- Phần diện tích không có mái che nhưng có lát gạch nền tính 70% diện tích.(Phần ban công).
- Phần diện tích lô gia tính 100% diện tích.

Chiều dài tầng lửng: 2.4 + 2.25 + 3.72 + 1.0 = 9.37 + 0.2 = 9.57 ( 0.2 là độ dày của tường vì diện tích sàn bao gồm phạm vi mép ngoài của tường).
Chiều dài thông tầng: 3.5 + 1.6 – 0.2 = 4.9m.

Diện tích sàn tầng 2, tầng 3 được chia làm 3 phần. Phần màu vàng, xanh là phần nhà, phần màu đỏ là ban công với hệ số khác nhau. Ta có thể ước chừng chiều dài thông tầng là 1.2 thấp hơn chiều dài ban công trước nên chiều dài ban công có thể là 1.5. Muốn biết chính xác ta phải dùng phần mềm Autocad.
Phần ban công :
- Ban công có mái che 70% diện tích.
- Ban công không có mái che 50% diện tích.


Chiều dài tầng 4: 4.0 + 2.25 + 4.72 = 11.87m. Chiều rộng 3.8m. Hệ số ban công không có mái che là 50% diện tích.


Ta có thể dựa vào mặt cắt ngôi nhà để biết ban công có mái che hay là không.

Chiều dài sàn: 2.25 + 0.75 + 0.9 = 4.8.
Chiều dài sân thượng trước: 4m.
Chiều dài sân sau: 2.97 + 0.1 = 3.07m (tổng chiều dài cả 3 phần sẽ là: 4.8 + 4.0 + 3.07 = 14.47m).


Chiều dài mái: 0.9 + 3.0 + 0.9 = 4.8m. Chiều rộng 3.8m Hệ số với mái bê tông cốt thép, không lát gạch là: 0.5. Diện tích sàn: 4.8 x 3.8 x 0.5 = 9.12m.
Phần Mái:
- Mái bê tông cốt thép, không lát gạch tính 50% diện tích của mái, có lát gạch tính 60% diện tích của mái.
- Mái ngói vì kèo sắt tính 70% diện tích của mái.
- Mái bê tông dán ngói tính 100% diện tích của mái.
- Mái tôn tính 30% diện tích của mái.

Phần tầng hầm(Tính riêng so với móng):
- Hầm có độ sâu nhỏ hơn 1.5m so với cao độ đỉnh ram hầm tính 135% diện tích.
- Hầm có độ sâu nhỏ hơn 1.5m so với cao độ đỉnh ram hầm tính 170% diện tích.
- Hầm có độ sâu nhỏ hơn 2.0m so với cao độ đỉnh ram hầm tính 200% diện tích.
Phần sân:
- Dưới 15m2 có đổ cột, đổ đà kiềng, xây tường rào, lát gạch nền tính 100%.
- Dưới 30m2 có đổ cột, đổ đà kiềng, xây tường rào, lát gạch nền tính 70%.
- Trên 30m2 có đổ cột, đổ đà kiềng, xây tường rào, lát gạch nền tính 50%.
Ô trống trong nhà (thông tầng):
- Có diện tích dưới 8m2 tính như sàn bình thường.
- Có diện tích lớn hơn 8m2 tính 50% diện tích.
Giá xây dựng theo mét vuông.
- Giá thiết kế = Diện tích xây dựng x đơn giá thiết kế theo m2.
- Giá phần thô = Diện tích xây dựng x đơn giá phần thô theo m2.
- Giá phần hoàn thiện = Diện tích xây dựng x đơn giá phần hoàn thiện theo m2.

Giá khái toán cho quy mô nhà 1 trệt 1 lửng 3 lầu có sân thượng mái BTCT.
Bảng giá khái toán trên giúp cho chủ đầu tư có cái nhìn sơ bộ về chi phí cho công trình nhưng cơ sở để chủ đầu tư kí hợp đồng với SATECCONS là bảng dự toán chi tiết cung cấp cho chủ đầu tư cái nhìn toàn diện về công đoạn làm việc, hạng mục thi công, nhãn hiệu, giá vật tư, nhân công.

